Mẫu nhà cấp 4 đẹp là xu hướng thiết kế phổ biến ở các vùng nông thôn Việt Nam. Phong cách kiến trúc đa dạng, đáp ứng yêu cầu chi phí thấp mà không làm mất đi tính thẩm mỹ, không gian sống tiện nghi chắc chắn đây sẽ là sự lựa chọn tuyệt vời cho gia đình bạn. Hãy cùng tham khảo một số mẫu thiết kế nhà đẹp và tiết kiệm chi phí vào năm 2023 cùng với nội thất trong hình.
Mục lục bài viết
- 1 Nhà cấp 4 là gì?
- 2 Một số đặc điểm của kiểu nhà cấp 4 đẹp tiết kiệm chi phí hiện nay
- 3 Gợi ý cách thiết kế nhà cấp 4 đẹp được ưa chuộng
- 4 Những Mẫu Thiết Kế Nhà Cấp 4 Đẹp Được Ưa Chuộng Hiện Nay
- 4.1 Mẫu nhà đẹp có gác lửng 4 tầng
- 4.2 Mẫu nhà cấp 4 mái thái
- 4.3 Mẫu thiết kế nhà cấp 4 mái bằng
- 4.4 Mẫu nhà cấp 4 mái lệch
- 4.5 thiết kế nhà cấp 4 mái ngói
- 4.6 Mẫu nhà cấp 4 đơn giản
- 4.7 Mẫu nhà cấp 4 đẹp độc đáo
- 4.8 Thiết kế nhà cấp 4 kết hợp sân vườn
- 4.9 Nhà cấp 4 đẹp phong cách Châu Âu
- 4.10 Mẫu nhà cấp 4 kiểu Nhật
- 4.11 Thiết kế nhà cấp 4 kiểu Pháp
- 4.12 Mẫu nhà cấp 4 hình chữ L
- 4.13 Mẫu thiết kế nhà cấp 4 đẹp diện tích 5×12m
- 4.14 Mẫu nhà cấp 4 có diện tích 5x15m
- 4.15 Mẫu nhà cấp 4 đẹp diện tích 5x20m
- 4.16 Mẫu thiết kế nhà cấp 4, có diện tích 6x20m
- 4.17 Giá mẫu nhà cấp 4 đẹp 400 triệu
- 4.18 Mẫu nhà cấp 4 đẹp nông thôn
- 4.19 Mẫu nhà cấp 4 có 2 phòng
- 4.20 Mẫu thiết kế nhà cấp 4 có 3 phòng ngủ
- 4.21 Mẫu nhà cấp 4 có 4 phòng
- 4.22 Mẫu nhà cấp 4 thiết kế đẹp giá 500 triệu
- 5 Tổng hợp một số mặt bằng công năng sử dụng nhà cấp 4
- 5.1 Bản vẽ chi tiết nhà cấp 4 mái thái gác lửng
- 5.2 Bản vẽ nhà cấp 4 có 2 phòng ngủ
- 5.3 Bản vẽ chi tiết nhà ống cấp 4 mái Thái
- 5.4 Bản vẽ chi tiết mẫu nhà cấp 4 hình chữ L đẹp
- 5.5 Bản vẽ nhà cấp 4 mái tôn 7x15m
- 5.6 Bản vẽ chi tiết nhà cấp 4 đơn giản 5x20m
- 5.7 Bản vẽ nhà cấp 4 mái bằng
- 5.8 Bản vẽ nhà cấp 4, 6×12
- 5.9 Chi tiết nhà cấp 4 diện tích 8×13
- 5.10 Mẫu nhà cấp 4 đẹp giả ngói
- 6 Quy định về chiều cao tiêu chuẩn xây dựng nhà cấp 4
- 7 Cách tính chi phí xây nhà cấp 4 đơn giản dễ hiểu
- 8 Mẹo Giảm Chi Phí Xây Nhà Cấp 4
- 9 Xây dựng Tín Hưng – Đơn Vị Thiết Kế Nhà Cấp 4 Đẹp Và Uy Tín
- 9.1 Bước 1: Hiểu được mong muốn của khách hàng
- 9.2 Bước 2: Khảo sát hiện trạng thực tế lô đất để xây nhà cấp 4
- 9.3 Bước 3: Ký hợp đồng thiết kế và thi công nhà cấp 4 với khách hàng
- 9.4 Bước 4: Thực hiện bản vẽ mặt bằng cho ngôi nhà
- 9.5 Bước 5: Dựng phối cảnh và triển khai bản vẽ chi tiết
- 9.6 Bước 6: Chốt bản vẽ lần cuối và bàn giao
Nhà cấp 4 là gì?
Theo quan niệm truyền thống, kiểu nhà cấp 4 đẹp là kiểu nhà có kết cấu vô cùng chắc chắn, khả năng chịu lực tốt và giá thành rẻ. Các thiết kế nhà cấp 4 hiện nay chủ yếu được làm bằng gạch, bê tông cốt thép hoặc gỗ. Ngôi nhà được bao quanh bởi những bức tường gạch hoặc vách ngăn hoặc hàng rào.
Phần mái của chủ nhân ở tầng 4 lợp bằng ngói, ván xi măng hoặc tre, gỗ, nứa… Tuy vật liệu đơn giản nhưng tuổi thọ trung bình của loại căn hộ này không tồi, khoảng 30 năm.

Mẫu nhà cấp 4 đẹp hiện đại
Một số đặc điểm của kiểu nhà cấp 4 đẹp tiết kiệm chi phí hiện nay
Các mẫu nhà cấp 4 đẹp ngày nay gây ấn tượng với gia chủ ở một số đặc điểm sau:
Thời gian xây dựng nhanh
Thời gian thiết kế và xây dựng nhà cấp 4 cũng diễn ra khá nhanh chóng. Do yêu cầu công trình không quá phức tạp, tốn nhiều thời gian để đổ mái như mẫu thiết kế biệt thự Do đó, thời gian xây dựng ngôi nhà ngắn, bạn có thể dọn vào ở nhanh chóng sau khi hoàn thành. Đây cũng là một trong những đặc điểm nổi bật được nhiều gia chủ lựa chọn cho thiết kế nhà cấp 4.

Thời gian thi công nhà cấp 4 nhanh chóng
kiến trúc đơn giản
được nhắc đến Mẫu nhà cấp 4 đẹp Chắc hẳn nhiều bạn đọc sẽ hình dung ngay đến thiết kế đơn giản của một ngôi nhà cấp 4 thông thường, 3-4 gian, không quá cầu kỳ. Có lẽ chính sự đơn giản này đã tạo nên nét riêng cho kiến trúc nhà cấp 4 mà vẫn đảm bảo vẻ đẹp, sự vững chãi và chắc chắn cho gia chủ.

Mẫu thiết kế nhà cấp 4 đẹp với kết cấu và kiến trúc đơn giản
Phong cách đa dạng
Hiện nay, có rất nhiều phong cách kiến trúc mẫu nhà cấp 4 đẹp khác nhau, từ kiến trúc châu Âu đến kiến trúc Á Đông, mái hiên hay ban công kiểu phương Tây,… tất cả đều đa dạng và hài hòa với văn hóa địa phương. Việt Nam.

phong cách đa dạng
Vật liệu xây dựng dễ kiếm
vật liệu xây dựng nhà cấp 4 Ít cầu kỳ nhưng vẫn đảm bảo độ an toàn, độ bền cho ngôi nhà của bạn, không lo bão tố hư hại. Đặc biệt, gia chủ có thể tận dụng các khối xây dựng này để bổ sung hoặc hoàn thiện kết cấu ngôi nhà rất tiện lợi và tiết kiệm chi phí.

Vật liệu xây nhà cấp 4 dễ kiếm
Chi phí xây dựng hợp lý
Mẫu nhà đẹp tầng 4 Hiện nay, có nhiều phong cách thiết kế khác nhau nên chi phí xây nhà cấp 4 thường thấp hơn và phù hợp với mức kinh tế của đa số gia đình Việt.
Tuy hiện nay có rất nhiều thiết kế khác nhau về chi phí xây nhà cấp 4, tuy nhiên chi phí cũng có sự dao động nhất định, tùy thuộc vào diện tích và mức độ dễ xây dựng. Nhưng nó vẫn được coi là một mô hình “nhà quê”.

Chi phí thiết kế nhà cấp 4 vô cùng hợp lý
Gợi ý cách thiết kế nhà cấp 4 đẹp được ưa chuộng
Trên đây là một số bí quyết mà Xây dựng nội thất Tín Hưng chia sẻ với bạn đọc đang có ý định thiết kế mặt tiền nhà cấp 4 đẹp, hiện đại và sang trọng.
Thiết kế mặt tiền nhà cấp 4 đẹp với tiểu cảnh đồng quê
Nếu bạn yêu thích phong cách đồng quê mộc mạc, giản dị, những ngôi nhà cấp 4 truyền thống pha lẫn nét hiện đại, tiện nghi thì không thể bỏ qua mẫu thiết kế ngoại thất đẹp với tiểu cảnh.

Cảnh quan nông thôn làm đẹp căn hộ bốn tầng thiết kế đường phố
Tiểu cảnh mặt tiền nhà đẹp tầng 4 nên làm sao để tiểu cảnh nội thất trông thật tự nhiên và mang lại cảm giác “cỏ trong nhà” là bài toán khó cho nhiều kiến trúc sư. Tuy nhiên, ngôi nhà cấp 4 đẹp với khung cảnh thôn quê đã được các Kiến trúc sư Tín Hưng hòa quyện một cách nghệ thuật để tạo nên một không gian sống đơn giản nhưng không kém phần sang trọng.

Mẫu mặt tiền nhà cấp 4 đẹp mái thái mộc mạc
Bạn có thể trang trí tiểu cảnh trước sân vườn bằng các loại hoa, cỏ, con vật quen thuộc trong vườn. Không gian sân vườn của bạn sẽ trông gần gũi và thực tế hơn.
Thiết kế nhà cấp 4 sử dụng kính cường lực
Thiết kế nhà cấp 4 bằng kính cường lực không còn quá xa lạ với nhiều gia đình. Vật liệu này rất phổ biến như một vật liệu hoàn thiện khi thiết kế nhà. Với khả năng chịu lực và hút sáng tốt, những ngôi nhà sử dụng kính cường lực sẽ trở nên thoáng và đẹp hơn.

Ngắm những mẫu nhà cấp 4 đẹp nhất
Kính cường lực được sử dụng trên toàn bộ mặt tiền của ngôi nhà giúp bạn có thể dễ dàng quan sát bên trong. Không chỉ vậy, nhìn từ xa, thiết kế này còn giúp không gian bên trong xe trở nên rộng rãi hơn.

Thiết kế tầng 4 của ngôi nhà
Thiết kế mẫu nhà cấp 4 kết hợp giàn hoa tươi

Mặt tiền nhà cấp 4 đẹp rực rỡ sắc hoa
Trang trí mẫu nhà cấp 4 đẹp bằng cách cắm hoa tạo nên nét độc đáo trong thiết kế của gia chủ. Nhìn từ xa ngôi nhà được thiết kế bằng hoa sẽ tạo cho người nhìn cảm giác bất ngờ và thu hút khi nhìn thấy ngôi nhà. Cùng với ngôi nhà 4 tầng, giàn hoa mang đến cho gia chủ một không gian sống tuyệt vời, ngát hương và tràn đầy sức sống.

không gian đẹp, nhà 4 tầng
Những Mẫu Thiết Kế Nhà Cấp 4 Đẹp Được Ưa Chuộng Hiện Nay
Mẫu nhà đẹp có gác lửng 4 tầng
Xây nhà cấp 4 có gác lửng một mẫu nhà đẹp Nó đã chiếm được cảm tình của rất nhiều khách hàng hiện nay.
Bởi lẽ, thiết kế gác lửng trong nhà sẽ giúp bạn tiết kiệm tối đa diện tích căn nhà mà không làm ảnh hưởng đến chiều cao. Đặc biệt, mẫu nhà cấp 4 đẹp có gác lửng không chỉ tiết kiệm chi phí mà không những tận dụng tối đa mọi thứ mà còn mang đến cho ngôi nhà nét thẩm mỹ sang trọng, hiện đại.

Mẫu nhà cấp 4 đơn giản có gác lửng

Mẫu nhà cấp 4 có gác lửng đẹp

Mẫu nhà cấp 4 có gác lửng đơn giản
Mẫu nhà cấp 4 mái thái
Những mẫu nhà cấp 4 đẹp mái thái đang rất phổ biến ở các vùng nông thôn. Hoàn toàn hoàn hảo cho một gia đình có thu nhập khá và diện tích đất rộng, thiết kế nhà cấp 4 Bạn không thể bỏ qua nó.
Mẫu Nhà Cấp 4 Đẹp Thiết kế nhà mái Thái hiện nay rất đa dạng, đáp ứng nhu cầu thẩm mỹ và sinh hoạt của các gia đình Việt.

Mẫu nhà cấp 4 đẹp đơn giản kiểu mái thái sang trọng

Mẫu nhà cấp 4 mái thái đơn giản

Mẫu nhà cấp 4 đẹp mái thái
Mẫu thiết kế nhà cấp 4 mái bằng
Thiết kế thiết kế nhà cấp 4 Mái bằng đang trở thành xu hướng được nhiều gia đình lựa chọn khi thiết kế nhà. Với mẫu nhà mái bằng đẹp rất lý tưởng để bạn xây dựng trên những khu đất hạn chế hoặc ở những khu đô thị cần tối ưu hóa không gian.
Với công trình mái bằng, xây nhà bằng bê tông phẳng sẽ giúp phần mái của ngôi nhà luôn khô ráo, không bị đọng nước. Hiện nay nhiều gia đình vẫn tận dụng mái nhà làm sân thượng, phơi đồ và trồng cây rất tiện nghi.

Mẫu thiết kế nhà cấp 4 mái bằng đơn giản đẹp

Mẫu nhà cấp 4 đẹp mái bằng đẹp

Nhà cấp 4 mái bằng sang trọng và tinh tế
Mẫu nhà cấp 4 mái lệch
Mẫu nhà cấp 4 đẹp hiện đại mái lệch tạo điểm nhấn ấn tượng cho không gian. Gia chủ có thể tăng diện tích sử dụng khi bố trí gác lửng, hoặc tận dụng mái để làm nơi phơi đồ vô cùng tiện lợi.

Mẫu nhà cấp 4 đẹp mái lệch

Thiết kế nhà cấp 4 hiện đại mái lệch

Mẫu nhà cấp 4 hiện đại mái lệch
thiết kế nhà cấp 4 mái ngói
Các mẫu nhà cấp 4 , mái ngói đẹp hiện nay rất đa dạng, không phân biệt yếu tố địa lý, thời đại, thành thị hay nông thôn,… công trình nào cũng có thể sử dụng ngói để tạo điểm nhấn cho ngôi nhà.
Hiện nay, việc xây dựng mẫu nhà cấp 4 mái ngói đẹp rất linh hoạt, có thể lựa chọn thiết kế nhà cấp 4 theo nhiều phong cách khác nhau. Hay đơn giản thêm một khoảng sân vườn rộng là bạn đã có thể sở hữu một ngôi nhà gỗ cấp 4 sân vườn mái ngói kiểu Nhật.

Mẫu nhà cấp 4 đẹp mái ngói cổ điển đẹp

Mẫu nhà cấp 4 đẹp thiết kế mái ngói sang trọng

Tham khảo mẫu nhà cấp 4 mái thái đẹp
Mẫu nhà cấp 4 đơn giản
Nếu bạn lên ý tưởng về một phương án nhà cấp 4 đẹp thì đương nhiên không thể bỏ qua phương án nhà cấp 4 đơn giản dưới đây. Mẫu nhà cấp 4 thiết kế mái thái ấn tượng. Tuy không có nhiều điểm nhấn ấn tượng nhưng tổng thể ngôi nhà vẫn mang một hương vị riêng, không gây cảm giác nhàm chán cho người nhìn.
Ngôi nhà hơi dốc giúp thiết kế đạt được sự cân đối tốt. Không gian ngôi nhà sử dụng toàn bộ khung cửa kính khiến ngôi nhà trở nên bề thế và sang trọng hơn.

mẫu nhà cấp 4 đơn giản

Mẫu nhà đẹp cấp 4 Thiết kế đơn giản bắt mắt

Thiết kế nhà tầng 4 hiện đại đơn giản đẹp
Mẫu nhà cấp 4 đẹp độc đáo
Khi bạn muốn thiết kế nhà cấp 4 đẹp thì mẫu nhà cấp 4 độc đáo sẽ là một gợi ý tuyệt vời. Kiến trúc của ngôi nhà được thiết kế theo phong cách freestyle, dưới bàn tay của một kiến trúc sư tài ba đã tạo nên một không gian sống vô cùng độc đáo và khác biệt.
Những kiểu nhà cấp 4 tinh tế, độc đáo như một luồng gió mới, thổi hồn vào công trình, tạo nên sự đa dạng cho những kiểu nhà cấp 4 tinh tế.

Mẫu nhà cấp 4 đẹp độc đáo

Nhà cấp 4 đẹp hiện đại

Chiêm ngưỡng thiết kế độc đáo của ngôi nhà 4 tầng
Thiết kế nhà cấp 4 kết hợp sân vườn
Nhà cấp 4 có sân vườn là xu hướng thiết kế nhà cấp 4 đang được rất nhiều gia chủ quan tâm. Không còn sống trong những ngôi nhà cao tầng, đầy đủ tiện nghi, việc sống hòa mình với thiên nhiên đang rất được ưa chuộng.
Mỗi công trình sân vườn sẽ có những đặc điểm và điểm nhấn riêng. Tuy nhiên, phong cách này có thể được xem như một luồng gió mới, mang đến nét hiện đại cho những ngôi nhà ở nông thôn.

Mẫu nhà cấp 4 đẹp kết hợp sân vườn châu âu

Nhà cấp 4 kết hợp sân vườn sang trọng

Thiết kế nhà cấp 4 kết hợp sân vườn hiện đại
Nhà cấp 4 đẹp phong cách Châu Âu
Nhà cấp 4 đẹp phong cách Châu Âu . Thông thường, các cột cao, thiết kế tường dày và vuông vức được áp dụng để tạo sự mềm mại và hiện đại theo phong cách nước ngoài. Điểm nổi bật của phong cách Châu Âu là sử dụng những gam màu trung tính giúp tôn lên nét thẩm mỹ độc đáo và tinh tế cho toàn bộ ngôi nhà.

Nhà cấp 4 phong cách Châu Âu không gian đẹp

Mẫu nhà cấp 4 đẹp phong cách châu âu độc đáo

Mẫu thiết kế nhà trệt cấp 4 đẹp phong cách Châu Âu
Mẫu nhà cấp 4 kiểu Nhật
xu hướng Xây Nhà Cấp 4 Phong cách Nhật Bản hiện đang rất được các gia chủ ưa chuộng. Nhà cấp 4 kiểu Nhật đẹp ở Việt Nam về tổng thể vẫn mang đậm nét cổ điển phù hợp với lối sống của người Việt. Thiết kế không gian mở, hài hòa với thiên nhiên nên không gian ngôi nhà luôn sáng sủa, rộng rãi.
Nếu bạn là người yêu thích thiên nhiên thì nhất định không nên bỏ qua mẫu thiết kế nhà cấp 4 này.

Nhà trệt cấp 4 kiểu Nhật đẹp sang trọng

Bungalow 4 tầng kiểu Nhật sang trọng

Mẫu nhà cấp 4 kiểu Nhật độc đáo
Thiết kế nhà cấp 4 kiểu Pháp
Nếu bạn có của riêng bạn Mẫu nhà cấp 4 hiện đại phong cách Pháp. Thiết kế độc đáo này mang đến cho bạn một không gian sống đẹp, sang trọng mang đậm nét cổ kính, quý phái.
Căn nhà cấp 4 đẹp này cũng tương đối đơn giản không cầu kỳ như những thiết kế cổ điển xa hoa lộng lẫy. Mẫu nhà cấp 4 mang phong cách Pháp này toát lên nét thẩm mỹ hiện đại pha chút cổ điển giúp gia chủ làm nên phong cách riêng.

Nhà cấp 4 hiện đại phong cách Pháp độc đáo

Nhà cấp 4 kiểu Pháp đẹp

Mẫu nhà cấp 4 kiểu Pháp sang trọng
Mẫu nhà cấp 4 hình chữ L
Thiết Kế Nhà Cấp 4 Hình chữ L là một trong những thiết kế đậm nét phương Đông, với bố cục kiến trúc hình khối độc đáo.
Mẫu nhà cấp 4 đẹp hình chữ L giúp không gian ngôi nhà được mở rộng tự nhiên, chi phí bỏ ra không quá nhiều chắc chắn sẽ làm hài lòng quý vị.

Thiết kế mẫu nhà hình chữ L đẹp cấp 4

Mẫu thiết kế nhà cấp 4 hình chữ L đơn giản mà sang trọng

Thiết kế 4 mẫu nhà chữ L đẹp phong cách hiện đại
Mẫu thiết kế nhà cấp 4 đẹp diện tích 5×12m
Diện tích 5×12m đủ để bạn có một ngôi nhà cấp 4 đẹp nhất hiện nay. Bạn có thể thiết kế nhà cấp 4 theo sở thích của mình và mẫu nhà cấp 4, dt 5x12m mang phong cách trẻ trung, hiện đại là một lựa chọn hay.
Ngôi nhà được thiết kế là một khối hình chữ nhật với phần trên là mái bằng kết hợp với hệ thống cửa kính làm tăng sự sang trọng và tinh tế.

Nhà cấp 4 đẹp diện tích 5x12m

Nhà cấp 4 hiện đại sang trọng 5x12m

Mẫu nhà cấp 4 hiện đại
Mẫu nhà cấp 4 có diện tích 5x15m
Mẫu nhà cấp 4 đẹp mái thái 5×15m cũng là một gợi ý hay. Thiết kế đỉnh cao, không bao giờ lỗi thời. Ngược lại, nó còn được đánh giá là phong cách, phần mái cao giúp không gian ngôi nhà thoáng đãng. Tùy theo sở thích mà bạn có thể bố trí các màu sắc khác nhau để làm nổi bật phong cách kiến trúc của ngôi nhà.

Mặt tiền nhà cấp 4 hiện đại, DT 5×15m

Thiết kế nhà cấp 4 đẹp diện tích 5x15m

Nhà cấp 4 có diện tích 5×15m tinh tế thiết kế sang trọng
Mẫu nhà cấp 4 đẹp diện tích 5x20m
Mẫu nhà cấp 4 đẹp 5 x 20m là một trong những mẫu thiết kế nhà cấp 4 hiện đại được ưa chuộng nhất hiện nay. Nhà mặt tiền có thể kinh doanh, buôn bán. Không gian bên trong có thể bố trí phòng khách và bếp ăn. Với cách bố trí và thiết kế khoa học, ngôi nhà của bạn sẽ trở nên sang trọng và lịch lãm hơn.

Khu tiểu cảnh 5×20m của ngôi nhà cấp 4

Mẫu nhà cấp 4 đẹp diện tích 5x20m

Nhà cấp 4 diện tích 5×20m
Mẫu thiết kế nhà cấp 4, có diện tích 6x20m
Với diện tích 6×20m, bạn có thể tham khảo kiểu nhà cấp 4 đẹp thêm gác lửng để mở rộng không gian cho ngôi nhà. Mẫu thiết kế nhà cấp 4 này cũng có thể biến tấu theo nhiều phong cách khác nhau như tân cổ điển, hiện đại, cổ điển,…

Mẫu nhà cấp 4 đơn giản 6x20m đẹp

Mẫu nhà cấp 4 đơn giản diện tích 6x20m
Giá mẫu nhà cấp 4 đẹp 400 triệu
Mẫu nhà cấp 4 đẹp 400 triệu tưởng chừng như không thể nhưng lại hoàn toàn có thể. Bạn nghe không nhầm đâu, ngân sách này là đủ để xây dựng cho mình một ngôi nhà nhỏ ấm cúng với thiết kế độc đáo, vật liệu trung bình rẻ.
Nhà cấp 4 giá 400 triệu rất phù hợp với vợ chồng trẻ muốn ở riêng. Để thiết kế nhà cấp 4 đẹp nhất, hãy lựa chọn giữa mái bằng hoặc mái dốc, đơn giản nhưng vô cùng độc đáo.

Thiết Kế Nhà Cấp 4 Đẹp Hiện Đại với 400 Triệu

Kiểu nhà cấp 4 hiện đại giá 400 triệu đẹp

Mẫu nhà cấp 4 đẹp hiện đại giá 400 triệu
Mẫu nhà cấp 4 đẹp nông thôn
Nhà ở quê, đất rộng, gia đình chung sống nhiều thế hệ.Mẫu thiết kế nhà cấp 4 đẹp Có diện tích rộng sẽ là một lựa chọn vô cùng phù hợp.
Những mẫu nhà cấp 4 phong cách này thường được thiết kế mang hơi hướng kiến trúc đô thị nhưng vẫn giữ được nét tinh tế, giản dị phù hợp cho các gia đình cùng chung sống.

Mẫu nhà cấp 4 đẹp ở vị trí đồng quê rộng đẹp

Mẫu nhà cấp 4 đẹp kiểu nông thôn phong cách cổ điển

Mẫu nhà đẹp ở nông thôn rộng
Mẫu nhà cấp 4 có 2 phòng
Mẫu nhà cấp 4 đẹp có 2 phòng ngủ Với công năng và tiện nghi đầy đủ phù hợp cho gia đình từ 2-4 người và là lựa chọn tốt cho các gia đình ở nông thôn.
Không quá tốn kém để xây nhà cấp bốn 2 phòng ngủ, bạn sẽ có một không gian sống lý tưởng.

Mẫu nhà cấp 4 đẹp 2 phòng ngủ

Mẫu thiết kế nhà cấp 4 đẹp có 2 phòng ngủ

Mẫu nhà cấp 4 đẹp có 2 phòng ngủ
Mẫu thiết kế nhà cấp 4 có 3 phòng ngủ
Thay vì chọn xây nhà cao tầng để phân chia các phòng chức năng trên các không gian nhiều tầng dành cho gia đình nhiều người thì nên chọn Mẫu Nhà Cấp 4 Đẹp 3 Phòng Ngủ sẽ là một lựa chọn tốt.
Thiết kế của những căn cấp 4 này vẫn đảm bảo cho việc sinh hoạt của nhiều người, các thành viên trong gia đình dễ dàng trò chuyện, sinh hoạt cùng nhau. Đặc biệt, chi phí xây nhà cũng rẻ hơn nhiều so với nhà tầng, đồng thời cũng dễ dàng vệ sinh.

Mẫu nhà cấp 4 có 3 phòng ngủ tiện nghi

Kiểu nhà cấp 4 tinh tế, thiết kế 3 phòng ngủ sang trọng

Thiết kế nhà cấp 4 có 3 phòng ngủ
Mẫu nhà cấp 4 có 4 phòng
Nhà cấp 4 đẹp 4 phòng ngủ, thiết kế đơn giản, đường nét hoa văn tinh tế, kết hợp với kiến trúc độc đáo tạo thêm nét khác biệt cho ngôi nhà. Với 4 phòng rất phù hợp cho gia đình nhiều người cùng ở.

Mặt tiền nhà cấp 4 đẹp hiện đại

Mẫu nhà mặt tiền đẹp cấp 4 có 4 phòng ngủ tiện nghi

Mặt tiền nhà cấp 4 đẹp
Mẫu nhà cấp 4 thiết kế đẹp giá 500 triệu
Nếu bạn có trong tay 500 triệu mà vẫn chưa chọn được mẫu thiết kế nhà cấp 4 đẹp thì có thể tham khảo ngay những mẫu thiết kế nhà cấp 4 đẹp sau đây.

Thiết kế biệt thự cấp 4 chi phí 500 triệu

Thiết kế biệt thự 500 triệu nhà trệt cấp 4 đẹp

Giá mẫu nhà cấp 4 đẹp 500 triệu
Tổng hợp một số mặt bằng công năng sử dụng nhà cấp 4
Mời các bạn tham khảo một số phương án mặt bằng công năng được sử dụng phổ biến nhất trong nhà cấp 4 hiện nay.
Bản vẽ chi tiết nhà cấp 4 mái thái gác lửng
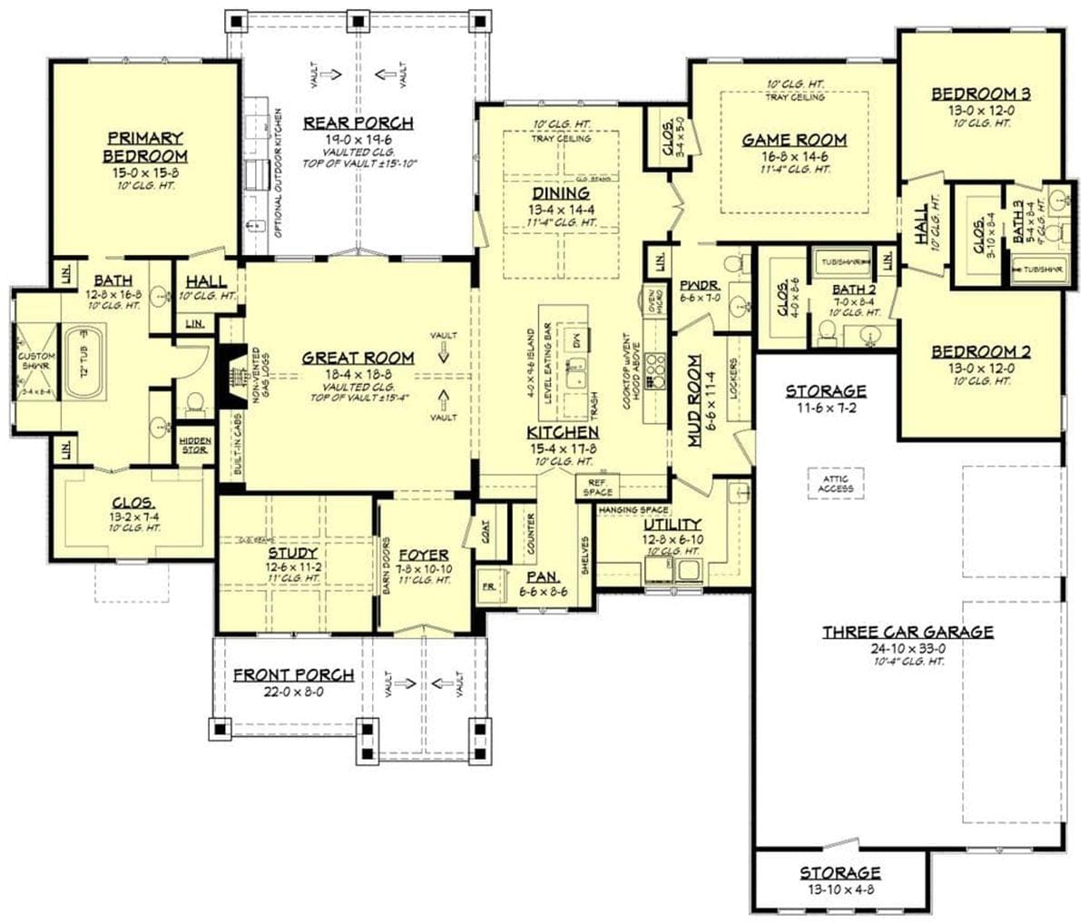
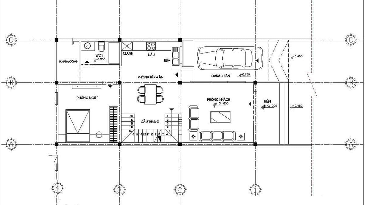
Đối với bản vẽ mẫu nhà cấp 4 đẹp thiết kế mái bằng thường bao gồm 5 phòng ngủ. Diện tích tầng 1 sẽ được chia thành 1 phòng khách, 1 phòng bếp ăn và 3 phòng ngủ tạo không gian sinh hoạt riêng tư cho từng thành viên. Dù diện tích xây dựng lớn hay nhỏ thì việc bài trí không gian luôn được tính toán kỹ lưỡng nhằm tận dụng tối đa diện tích căn nhà.

Bản vẽ chi tiết nhà cấp 4 mái thái gác lửng
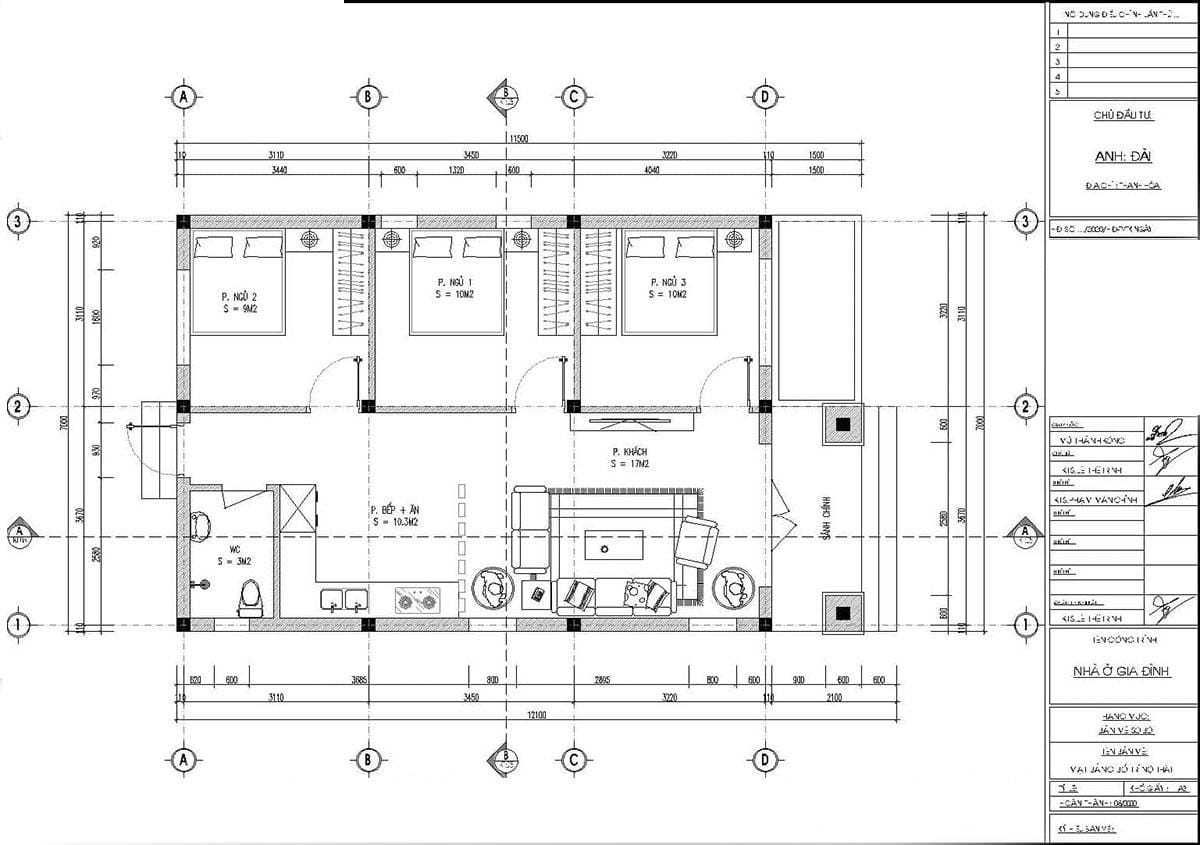
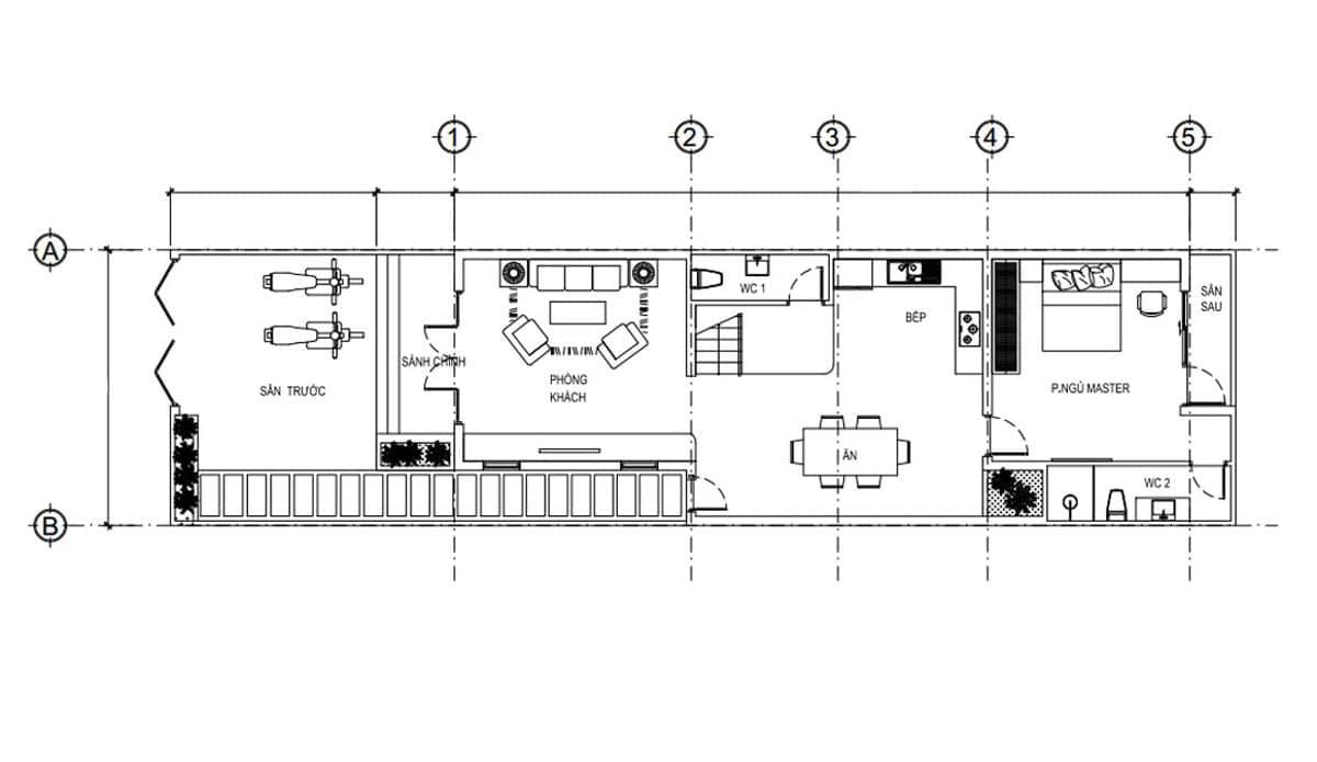
Bản vẽ nhà cấp 4 có 2 phòng ngủ
Nhà cấp 4 có 2 phòng ngủ là mẫu thiết kế được nhiều gia đình ưa chuộng. Nhà sẽ được bố trí 2 phòng ngủ và 1 phòng thờ. Không gian tiếp khách và ăn uống sẽ được liên thông với nhau tạo thành 1 không gian mở giúp ngôi nhà 4 tầng trở nên thoáng và rộng hơn. Đối diện phòng khách là phòng thờ, cạnh phòng thờ là 2 phòng ngủ khép kín. Tạo không gian sống thoải mái cho gia đình bạn.

Bản vẽ hai phòng ngủ nhà cấp 4
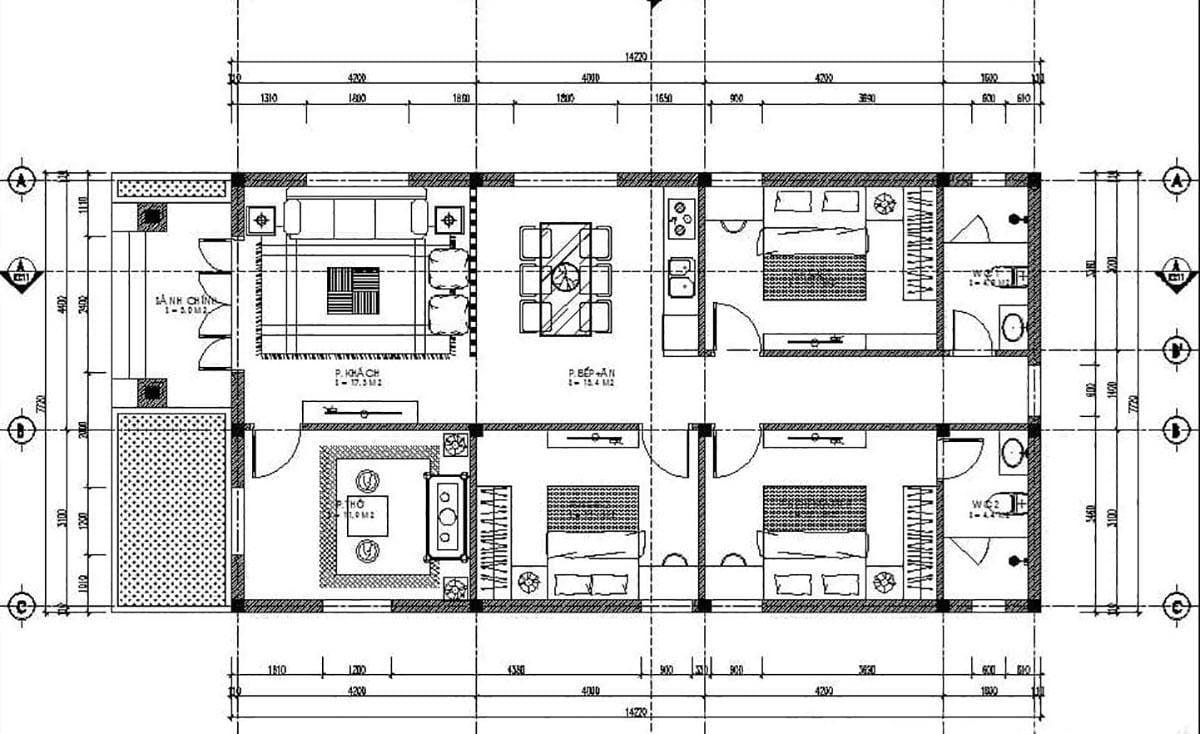
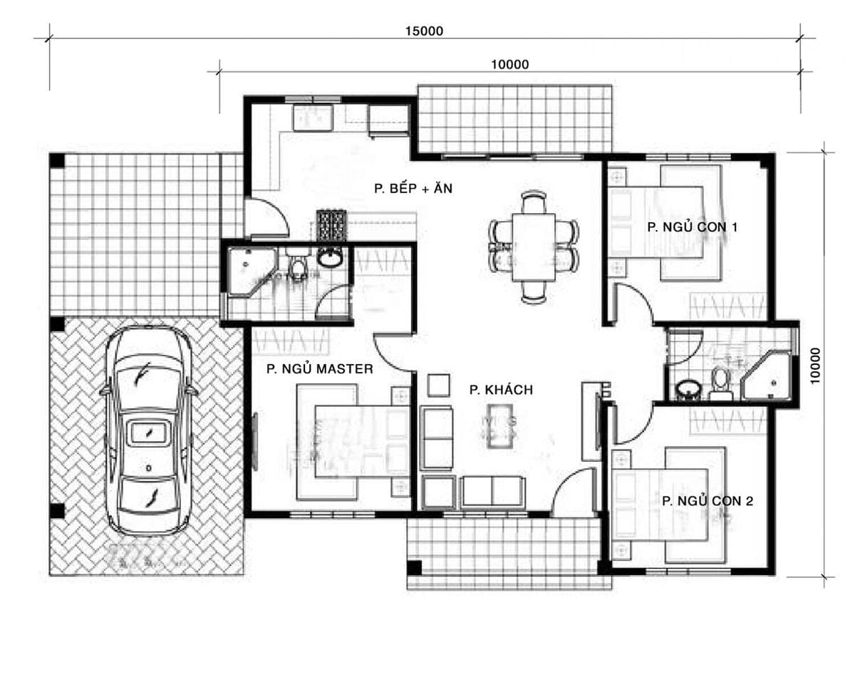
Bản vẽ chi tiết nhà ống cấp 4 mái Thái
Mẫu nhà cấp 4 đẹp với thiết kế 3 phòng ngủ gây ấn tượng mạnh với gia chủ bởi vẻ đẹp độc đáo không kém, thiết kế sang trọng. Không gian phòng ngủ khép kín thuận tiện cho sinh hoạt và giấc ngủ của các thành viên. Với thiết kế mái thái, không gian ngôi nhà sẽ không bị bó hẹp, chỉ cần bạn thiết kế bố cục không gian, thiết kế ngoại thất, phối màu phù hợp thì ngôi nhà sẽ trở nên thoáng và đẹp hơn.

Bản vẽ chi tiết nhà ống 4 tầng mái thái
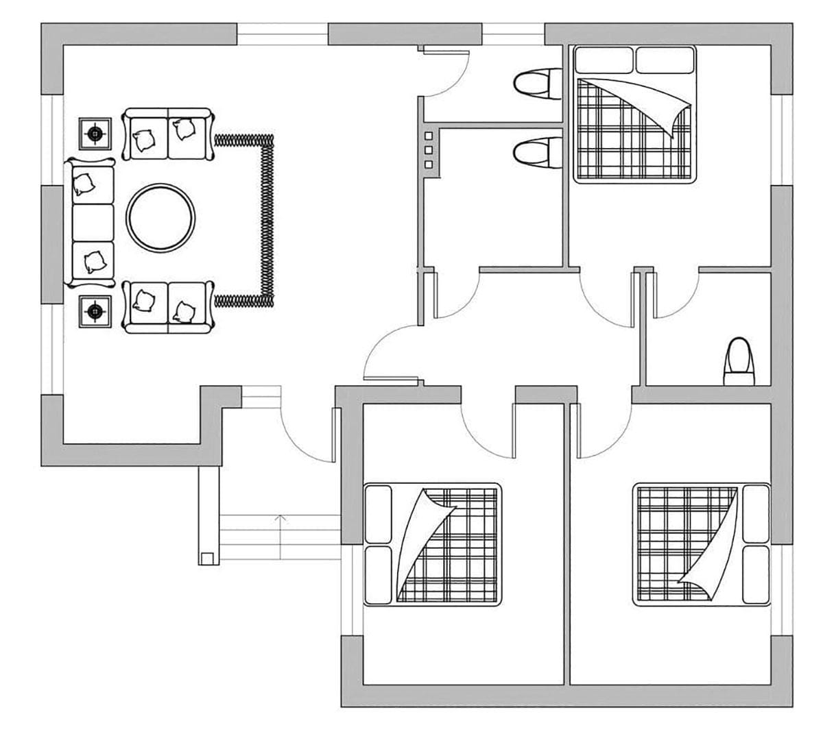
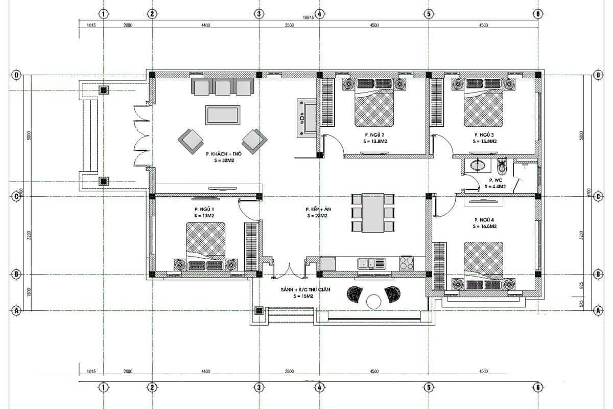
Bản vẽ chi tiết mẫu nhà cấp 4 hình chữ L đẹp
Mẫu nhà cấp 4 đẹp hình chữ L có thể nói là hình mẫu cho rất nhiều gia đình, đặc biệt là những “công dân” ở nông thôn. Thiết kế hình chữ L vừa dễ xây dựng vừa giúp gia chủ tối ưu hóa không gian. Với kiểu nhà này, bạn có thể dễ dàng thay đổi nhiều phong cách, từ đơn giản đến hiện đại, từ cổ điển đến tân cổ điển,… Một trong những đặc điểm của kiến trúc nhà chữ L là có thể sử dụng chân tường. Chữ L được tận dụng để làm không gian bếp ăn, còn phòng vệ sinh cho gia đình. Không gian giữa bạn sẽ cung cấp cho các thành viên một phòng ngủ khép kín. Thiết kế này cũng giúp không gian phòng ăn rộng rãi và sang trọng hơn.

Bản vẽ chi tiết mẫu nhà cấp 4 hình chữ L đẹp
Bản vẽ nhà cấp 4 mái tôn 7x15m
Mẫu thiết kế nhà cấp 4 đẹp mái tôn diện tích 7x15m không còn xa lạ với các gia đình Việt đặc biệt là các gia đình ở nông thôn. Sử dụng mái tôn có thể giúp gia chủ tiết kiệm chi phí và nâng cao tính thẩm mỹ cho ngôi nhà của mình. Mặt tiền nhà cấp 4 thường được trang trí bằng nhiều hoạ tiết độc đáo. Mặt cắt ngôi nhà gồm 5 gian chính và 1 gian phụ. Phòng phụ có thể làm nhà kho, hoặc thiết kế thêm phòng tắm có toilet, rất tiện lợi.

Bản vẽ nhà cấp 4 mái tôn 7x15m
Bản vẽ chi tiết nhà cấp 4 đơn giản 5x20m
Diện tích 5x20m rất phù hợp với nhà bạn 4 tầng thiết kế đơn giản, mặt tiền đường tiện đi lại. Mái thái được chia 2 bên đảm bảo khả năng chống nắng, chống thấm hiệu quả. Mặt bằng tổng thể của ngôi nhà cũng bao gồm 1 phòng khách, 3 phòng ngủ và 1 phòng bếp ăn. Tất cả không gian của căn phòng sẽ được phân bổ đều, tạo nên sự đối xứng và cân đối cho ngôi nhà.

Bản vẽ chi tiết nhà cấp 4 đơn giản 5x20m
Bản vẽ nhà cấp 4 mái bằng
Nhắc đến những mẫu nhà cấp 4 hiện đại, tất nhiên chúng ta không thể bỏ qua những mẫu nhà mái bằng được thiết kế độc đáo và dễ trang trí. Mặt đứng của ngôi nhà có thể sử dụng những đường nét đơn giản, không những có thể khiến ngôi nhà trông chắc chắn hơn mà còn đảm bảo mỹ quan cho tổng thể công trình. Không gian bên trong ngôi nhà sẽ bao gồm 1 phòng khách, 1 phòng bếp ăn và 2 phòng ngủ. Nếu diện tích đất rộng, bạn cũng có thể tăng thêm số phòng ngủ hoặc thiết kế phòng ngủ khép kín. Để không gian bên trong có cảm giác thoáng hơn, đồ nội thất nên được sắp xếp gọn gàng, sử dụng nội thất khéo léo để tạo nên nét tinh tế cho ngôi nhà.

bản vẽ nhà cấp 4 mái bằng
Bản vẽ nhà cấp 4, 6×12
Mẫu nhà cấp 4 đẹp đơn giản 6×12m không phải là kích thước quá nhỏ để bạn có thể thiết kế tổ ấm hạnh phúc cho gia đình mình. Với diện tích này, bạn có thể tận dụng xây nhà hình ống hoặc mẫu nhà mái thái hẹp có khoảng sân riêng. Không gian bên trong vẫn bao gồm 2-3 phòng ngủ, 1 phòng khách và 1 phòng ăn. Để tối ưu hóa không gian, bạn nên để phòng ăn và phòng khách không bị ngăn cách, tạo không gian mở và thoáng mát cho ngôi nhà.

Bản vẽ nhà cấp 4 6×12
Chi tiết nhà cấp 4 diện tích 8×13
8 x 13m là khu vực lý tưởng để thiết kế ngôi nhà bốn tầng xinh đẹp của bạn theo cách bạn muốn. Bạn có thể thiết kế kiểu nhà mái Thái, mái Nhật hay kiểu mái bằng tùy theo điều kiện tài chính và sở thích của mình. Tuy nhiên với diện tích chiều dài 13m, chiều rộng 8m kiến trúc sư đã bố trí ngôi nhà thành 3 phòng ngủ, 1 phòng ăn và 1 phòng sinh hoạt chung. Không gian phòng khách thường được bố trí cạnh phòng khách để tạo sự thông thoáng cho ngôi nhà.

Chi tiết nhà 4 tầng 8×13
Mẫu nhà cấp 4 đẹp giả ngói
Mẫu nhà cấp 4 đẹp bằng túi giả luôn biết cách mang đến sự khác lạ và độc đáo cho ngôi nhà. Bản vẽ mẫu nhà này thường bao gồm 2 phòng ngủ, 1 phòng thờ, phòng khách và phòng ăn. Với những gia đình có nhiều quỹ đất hơn thường thiết kế 3 phòng ngủ và bố trí diện tích phòng ngủ lớn hơn. Đối với kiểu nhà này, khu vực sân thường được thiết kế với rất nhiều cây xanh xung quanh để tạo sự thông thoáng cho ngôi nhà.

Mẫu nhà cấp 4 đẹp giả ngói
Quy định về chiều cao tiêu chuẩn xây dựng nhà cấp 4
Theo quy định của Bộ Xây dựng, quy định về tiêu chuẩn chiều cao công trình nhà ở rất rõ ràng. Trong xây dựng nhà ở dân dụng, chiều cao cụ thể của mẫu nhà cấp 4 đẹp còn được quy định theo tỷ lệ giữa độ dày của tường với mác vữa. Vì vậy,
- Chiều cao mẫu nhà cấp 4 (Tỷ lệ H/d) thường nhỏ hơn 20 khi mác vữa là 75:50
- Chiều cao của nhà cấp hơn nhỏ hơn 13 khi mác vữa là 25.
Trong đó, H là chiều cao của ngôi nhà. “d” là độ dày của tường.
Trên thực tế, chiều cao của mỗi căn nhà cấp 4 sẽ được chia thành 3 mức cốt nền khác nhau. Đối với những gia đình yêu cầu phòng thấp thì chiều cao tiêu chuẩn là 2,4-2,7m. Với những gia đình có nhu cầu trung bình thì chiều cao nhỉnh hơn một chút dao động từ 3-3,3m. Đối với những gia đình có yêu cầu sử dụng phòng cao thì chiều cao sẽ nằm trong khoảng 3,6-5m.
Ngoài ra, tùy theo khu vực quy hoạch, khí hậu, địa hình mà chiều cao, kích thước của mẫu nhà cấp 4 đẹp cũng sẽ thay đổi cho phù hợp. Đặc biệt.

Quy Định Về Tiêu Chuẩn Chiều Cao Nhà cấp 4
Quy định về chiều cao nhà cấp 4 đẹp có gác lửng
Mẫu nhà cấp 4 gác lửng là mẫu nhà có thiết kế rộng, do đó chiều cao của mẫu nhà này thường được xác định dựa vào chiều cao của tầng trệt.
Chiều cao tầng trệt gác lửng sẽ giao động trong khoảng 7m. Phần tầng lửng sẽ có chiều cao từ 2-2.5m. Kích thước chiều cao này nhằm đảm bảo sự hài hòa trong kiến trúc cũng như giúp việc bố trí đồ nội thất dễ dàng, tiện lợi hơn.
Quy định chiều cao nhà cấp 4 mái thái
Đối với mẫu nhà cấp 4 đẹp nếu diện tích nhà 100m2 đến 150m2 thì chiều cao mái thái khoảng 3,6-4m. Đối với những ngôi nhà có diện tích nhỏ hơn thì chiều cao phần mái sẽ thấp hơn một chút khoảng 3-3,3m.

Quy định chiều cao nhà cấp 4 mái thái
Quy định về chiều cao nhà cấp 4 mái tôn, mái bằng
Trong kỹ thuật xây dựng, chiều cao của mẫu nhà đẹp cấp 4 mái tôn, mái bằng được tính theo chiều cao tiêu chuẩn. Bởi thiết kế mái tôn hay mái bằng không có gì quá đặc biệt. Vì vậy, chiều cao mái của hai loại nhà này thường từ 2,4-2,7m. Ngoài ra, những gia đình muốn thiết kế phòng cao hơn có thể sử dụng kích thước trung bình từ 3,6-5m.
Cách tính chi phí xây nhà cấp 4 đơn giản dễ hiểu
Công thức dựa trên hệ số
Đối phần móng
- Thi công móng đơn: đã bao gồm trong đơn giá
- Thi công móng cọc: 30% diện tích đất
- Xây dựng trên băng một chiều: 50% diện tích mặt bằng
- Thi công móng hai phương: 70% diện tích nền
- Thi công móng bè: 100% diện tích đất
Đối Phần sàn
- Diện tích xây dựng có mái che: 100% tầng 1, 2, 3
- Diện tích xây dựng không mái che: 50% sân phơi, sân thượng
Đối phần mái
- Mái tôn: 30%
- Mái ngói vì kèo sắt: 70%
- Mái ngói đổ BTCT: 100%
Trước và sau: 50%
Diện tích cầu thang: 100%
Tổng chi phí xây dựng = chi phí móng cọc + chi phí xây dựng phần thô và hoàn thiện
Công thức tính chi phí thi công móng cọc
Công thức tính chi phí thi công móng cọc như sau:
(đơn giá x số lượng cọc x chiều dài cọc) + phí thi công cọc + (Hệ số x diện tích sàn x đơn giá)
Cách tính giá thành phần thô và vật tư hoàn thiện
Công thức tính chi phí vật tư thô và hoàn thiện sẽ áp dụng công thức sau:
Tổng diện tích (theo hệ số) x đơn giá
Mẹo Giảm Chi Phí Xây Nhà Cấp 4
Các bước chuẩn bị đòi hỏi sự chú ý cẩn thận
Trước khi tiến hành xây dựng mẫu nhà cấp 4 đẹp hay bất cứ công trình nào khác, bạn cần lên ý tưởng cho mình.Thiết kế nội thất, dự tính trước kinh phí và nắm rõ những thông tin cơ bản khi xây nhà.
Bạn càng chuẩn bị kỹ bao nhiêu thì càng dễ thực hiện bấy nhiêu.

Các bước chuẩn bị đòi hỏi sự chú ý cẩn thận
Đề xuất ý tưởng thiết kế cụ thể
Thay vì chọn một kiểu nhà quá cầu kỳ, tốt hơn hết bạn nên nghĩ đến Mẫu Thiết Kế Nhà Cấp 4 Đẹp Kết cấu đơn giản, hình khối gọn gàng, không đòi hỏi nhiều về kỹ thuật, đặc biệt kiểu dáng phù hợp với gia đình bạn.
Từ những hình khối có sẵn, bạn có thể dễ dàng đánh giá, phân tích các phương án xây dựng, từ đó lên kế hoạch dự toán chi phí hợp lý cho ngôi nhà của mình.

Chọn phong cách thiết kế mẫu nhà cấp 4 đẹp dễ xây
Tính diện tích xây nhà cấp 4 hợp lý
Bí quyết xây nhà cấp 4 đẹp, tiết kiệm và tối ưu là giảm bớt những diện tích không cần thiết. Vì diện tích càng lớn thì chi phí càng cao mà đôi khi là không cần thiết cho gia đình bạn.
Hãy tính toán diện tích vừa đủ để xây dựng số lượng phòng ngủ phù hợp và bếp linh hoạt đảm bảo tính thẩm mỹ cũng như công năng trong quá trình sử dụng.

Tính diện tích xây nhà cấp 4 hợp lý
Chuẩn bị vật liệu xây dựng
Tùy thuộc vào ngân sách của bạn, bạn có thể chọn loại vật liệu phù hợp cho ngôi nhà của bạn.
Đối với nhà cấp 4, bạn không cần đầu tư quá nhiều vào vật liệu đắt tiền mà chỉ cần chọn những vật liệu cơ bản, thông dụng cũng có thể đảm bảo độ bền đẹp cho ngôi nhà.

Chuẩn bị vật liệu xây dựng
Chọn nội thất phù hợp
Nếu muốn tối ưu hóa chi phí, bạn có thể tiết kiệm chi phí bằng cách chọn những đồ nội thất cơ bản nhất. Bạn có thể thêm đồ nội thất khác sau này.
Tuy nhiên, bạn có thể lựa chọn những món đồ nội thất thông minh cho ngôi nhà của mình để có thể phục vụ nhiều mục đích và tránh lãng phí hay bất tiện trong quá trình sử dụng.

Lựa Chọn Nội Thất Mẫu Nhà Cấp 4 Đẹp Phù Hợp
Chọn đơn vị làm nhà cấp 4 uy tín
Yếu tố quan trọng nhất bạn cần chú trọng để xây dựng một ngôi nhà đẹp và tiết kiệm chi phí đó là lựa chọn nhà thầu xây dựng uy tín và chất lượng cao.
Trước khi quyết định lựa chọn nhà thầu, bạn nên khảo sát và tham quan công trình thiết kế của họ trên những ngôi nhà cấp 4 đã xây dựng trước đó để xem xét và đánh giá năng lực của họ. Bằng cách này, bạn cũng sẽ yên tâm hơn khi lựa chọn đối tác thi công.

Chọn nhà thầu uy tín
Xây dựng Tín Hưng – Đơn Vị Thiết Kế Nhà Cấp 4 Đẹp Và Uy Tín
Hiện nay trên thị trường có rất nhiều đơn vị Thiết Kế Nhà Cấp 4.Tuy nhiên không phải đơn vị nào cũng có kinh nghiệm và đội ngũ nhân viên chất lượng để đáp ứng nhu cầu khách hàng.
Với hơn 5 năm kinh nghiệm thiết kế và thi công nhà ở, Nhà Đẹp Tín Hưng Là một trong những đơn vị thiết kế nhà được nhiều người tin tưởng và tín nhiệm. Chúng tôi đã thực hiện hàng trăm công trình lớn nhỏ trên khắp cả nước, để lại dấu ấn kiến trúc mạnh mẽ.
Chúng tôi tự hào có quy trình làm việc chuyên nghiệp, rõ ràng giúp mang đến những sản phẩm chất lượng cao nhất cho khách hàng
Bước 1: Hiểu được mong muốn của khách hàng
Giúp khách hàng có mẫu mặt tiền nhà 4 tầng Đẹp và sang trọng, hiểu được mong muốn của khách hàng là điều vô cùng cần thiết. Để thực sự hiểu được nhu cầu của khách hàng, Tín Hưng luôn đặt ra những câu hỏi như: khách hàng muốn nhà cấp 4 như thế nào, muốn bao nhiêu phòng, thiết kế nội thất ra sao. …
Sau khi trao đổi với khách hàng và hiểu được mong muốn của khách hàng, Tín Hưng sẽ hẹn gặp trực tiếp khách hàng để đạt được thỏa thuận sơ bộ.
Bước 2: Khảo sát hiện trạng thực tế lô đất để xây nhà cấp 4
Để đưa ra một bản thiết kế hoàn hảo và chính xác, các kiến trúc sư của Tín Hưng sẽ khảo sát thực tế khu đất xem khu đất có khác nhiều so với những gì khách hàng mô tả hay không trước khi tiến hành các bước tiếp theo.
Bước 3: Ký hợp đồng thiết kế và thi công nhà cấp 4 với khách hàng
Sau khi đàm phán và tìm hiểu, hai bên đã ký kết thỏa thuận về phong cách thiết kế, dự án cụ thể và chi phí thực hiện. Bước này nhằm đảm bảo quyền lợi của hai bên theo quy định của hợp đồng trong quá trình thi công.
Bước 4: Thực hiện bản vẽ mặt bằng cho ngôi nhà
Thiết kế nhà cấp 4 đẹp là công đoạn quan trọng nhất và là công đoạn mà các kiến trúc sư của Tín Hưng dành nhiều thời gian nhất.
Bản vẽ mặt bằng của ngôi nhà sẽ bao gồm quy hoạch tổng thể khu đất, vị trí ngôi nhà, cảnh quan xung quanh, hướng,… tất cả được phân chia rõ ràng.
Điều này sẽ giúp gia chủ dễ dàng hình dung được thiết kế của ngôi nhà. Dự án luôn đòi hỏi sự chính xác và chú ý đến từng chi tiết.
Bước 5: Dựng phối cảnh và triển khai bản vẽ chi tiết
Sau khi hoàn thành bước 4, ở bước 5, bạn sẽ thiết kế mẫu nhà cấp 4 đẹp này dưới dạng 3D trực quan và chính xác nhất có thể. Bản vẽ càng chi tiết, khách hàng càng dễ hình dung ngôi nhà của mình và đưa ra những gợi ý sửa chữa hợp lý.
Thảo luận và đi đến thống nhất cuối cùng với chủ nhà, sau đó triển khai bản vẽ.
Bước 6: Chốt bản vẽ lần cuối và bàn giao
Các kiến trúc sư tại Tín Hưng sẽ chăm chút thiết kế để đưa từng chi tiết đạt đến đỉnh cao của sự hoàn hảo. Sau đó chúng tôi bàn giao phương án thiết kế cho đơn vị thi công.
Hi vọng chia sẻ của Xây dựng nội thất Tín Hưng Mẫu Thiết Kế Nhà Cấp 4 Đẹp Và tiết kiệm chi phí 2023 giúp có thêm kinh nghiệm hữu ích để xây nhà đẹp và tiết kiệm chi phí.
Nếu bạn đang tìm đối tác thiết kế & thi công nhà trọn gói uy tín, hãy liên hệ với chúng tôi theo Hotline 0832.032.579. Chúng tôi sẽ mang đến cho bạn giải pháp tốt nhất giúp bạn dễ dàng sở hữu ngôi nhà đẹp như mơ ước với chi phí tiết kiệm nhất.







Xin giá ạ
Xin giá thi công trọn gói ạ
Diện tích sàn bao nhiêu ạ? Giá thiết kế căn này ạ
Xin thông tin diện tích và tổng thiệt hại với ạ
Inb mình nhà này với
Sân trừ bao nhiêu mét vậy bạn
Ib cho mình giá chọn vẹn 100m2 dc ko ạ?
M xin báo giá và bản vẽ mẫu ntn dc k ạ.
Bao nhiêu phòng ngủ ạ?
Cho xin giá thi công nha
Xin gias
Mẫu này tầng trệt có phòng ngủ nhỏ ko ad
Chi phí bao nhiêu ạ
Nhà này bên bạn thi công nội thất hay cả xây dựng thế? Inbox cho mình giá nhé
diện tích và hoàn thiện căn này bao nhiêu ạ ?
cho mình xin giá hoàn thiện
Cho xin kích thước của từng khu vực đi bạn?
Mình thấy mấy mẫu nhà ống SBS thiết kế ít thấy bố trí khu vực dành cho bà thờ ông địa ông thần tài, Tín Hưng cho mình hỏi nên bố trí bàn thờ này ntn cho hợp lý ở khu vực tầng trệt ạ?
ib mình giá trọn gói ngôi nahf này dc k
Xin giá
Bên mình có bán bản vẽ này ko ạ
Ib
Mình xin giá căn này ạ
nhà này diện tích bn ạ?
bao đẹp
Chi phí cho căn như thế này tầm bao nhiu ạ?
Đẹp quá
xin giá trọn gói luôn nội thất nhà này nha Tín Hưng
Cho mình xin thông kích thước và giá trọn gói căn này nha
Ib
Mình xin giá tham khảo với ạ
Ibm căn này